账号
密码
会员注册
设为首页
加入收藏
首页
政务信息
政务动态
法律法规
行业要闻
商品房
精品房源
销售统计
入网企业
存量房
房源出售
房源出租
房源展示
便民服务
机构设置
表格下载
信息公开
信息查询
预售许可
合同备案
机构信息
桃源里
开发企业
预售许可证
楼盘档案
楼盘表
预售许可证查询
查询关键字:
查询类型:
项目名称
开发商
坐落位置
预售证号
最新商品房
●
林兴苑小区
曲阜市基恒城市发...
●
文庭雅苑
山东普丰置业有限...
●
大学赋
山东犁铧润楚置业...
●
书香世家
山东积厚源房地产...
●
幸福里春晖苑
九巨龙房地产开发...
●
桃源里
九巨龙房地产开发...
●
祥府二期
曲阜犁铧润泽置业...
●
圣都禧园
曲阜骏程置业有限...
●
风雅颂
曲阜方兴犁铧置业...
●
海天大厦(原富...
曲阜市恒基城市发...
办事大厅
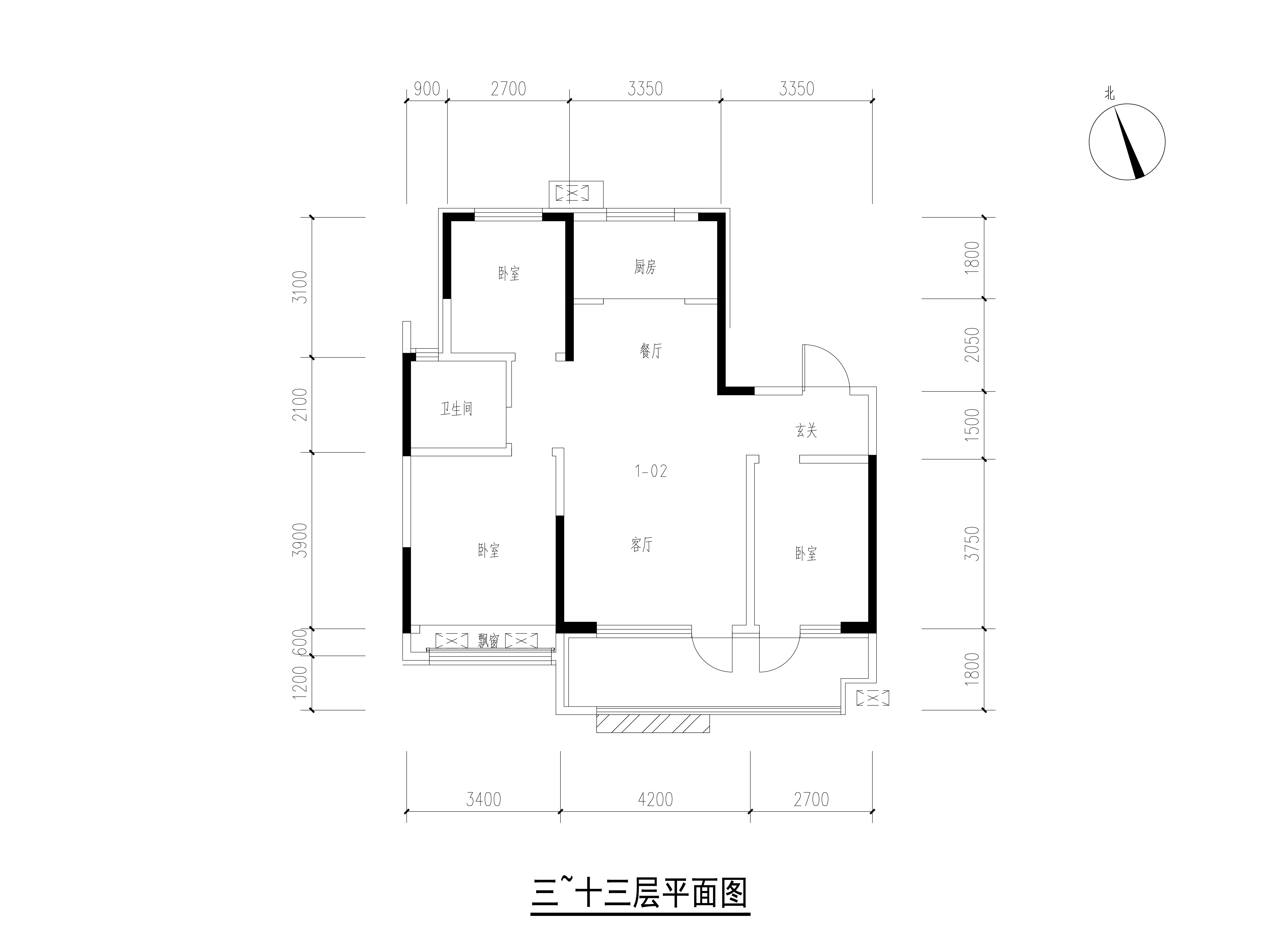
房屋详细信息
幢号:
0011
房号:
1702
单元号:
01
房名:
一单元1702
建筑面积:
109.70
平方米
套内面积:
84.06
平方米
当前层:
17
层高:
2.90
房屋用途:
成套住宅
分摊面积:
25.64
平方米
房屋套型:
三室两厅一卫
房屋状态:
可售
房屋单价:
4700.00
元
房屋总价:
515590.00
元
最新购房指南
住房公积金使用技巧
【13-09-23】
购房技巧
【13-06-06】
两种相互冲突的房屋登记的处理——以同一房屋产生的转让转移登记与继承转移登记的冲突为例
【13-05-31】
刚出生的小孩可否购买房屋,登记机构可否为该小孩发放房屋的所有权书?
【13-05-22】
关于规范商业性个人住房贷款中第二套住房认定标准的通知
【13-05-14】
Copyright 2013 www.qfsfc.com All Rights Reserved 鲁ICP备13002664
主办:
曲阜市房地产交易登记中心
(建议使用1024×768分辨率 IE6.0以上版本浏览器)
会员登陆
会员注册